About Us
Our Campus
Our Clergy & Staff
Our Story
History of Our Parish
Our Patron
Calendar of Events
Become a Parishioner
New Member Registration
Update Member Information
Safe Environment
New Volunteers
Training
Nursery
Weekly Bulletins
Parish News
Contact Form
Worship
Mass Times, Confession, & Adoration
Livestream Masses
Livestream Archives
Funerals
Planning Your Funeral
The Seton Columbarium
Obituaries
Obituaries 2026
Obituaries 2025
Obituaries 2024
Prayer Requests & Mass Intentions
Mass Intentions
Prayer Chain
Community Prayer Request
Taizé Prayer
Sacraments
Becoming Catholic & OCIA
Baptism
Infant Baptism Preparation
Baptism Class Registration
First Holy Communion & Reconciliation
Confirmation
Youth Confirmation
Adult Confirmation
Holy Matrimony
Marriage FAQs
Marriage Requirements
Engaged Sponsor Couples
Convalidation
Convalidation Workshop's elsewhere
Annulment Ministry
Natural Family Planning
Anointing of the Sick
Holy Orders
Sacramental Record Request
Ministries
Liturgical Ministry
Altar Servers
Lectors
Extraordinary Ministers of Holy Communion
Ushers
Altar Guild
Altar and Environment Ministries
Art and Environment
Music Ministry
8:00 AM Choir
10:00 AM Choir
Noon Choir
5:00 PM Sunday Youth Choir
Children's Choir
Sound Ministry
Pastoral Care
Visitation Ministries
Faith Formation
Adult Ministry
Group Interest Form
Catholic Once and Again
Scripture Formation Groups
Family Bible Study
Friday Women's Scripture Study
Men's Bible Study
Saturday Morning Scripture Study
Sunday Morning Bible Study
Tuesday Evening Scripture Study
Women's Wed. Morning Scripture Study
Ignatian Retreat
Sonrise Brotherhood
Reserve Time
Seton Library
Welcome Retreats
ACTS Resources
Core Resources
Retreat Team Resources
ACTS Testimonials
Mundus Dei
Certificate in Pastoral Ministry
Children's Ministries
VBS
Family Faith Formation
Registration Directions & Forms
SPARK (3rd-6th Grades)
Children's Liturgy of the Word
Ark Adventure Preschool Link
Children's Choir
Choir Booklet and MP3s
Catholic Schools
Volunteer with Children & Youth Ministry
Children's Liturgy
Youth Ministry
BLAST (7th-8th Grades)
C.R.E.W.
Youth Confirmation
Upper Room
Young Adult Ministry
Get Involved
Parish Events
50th Anniversary Picnic
Msgr. Henry Petter’s 50th Ordination Anniversary Reception
Multicultural Celebration 2026
Seton Women's Club Holiday Bazaar
50th Anniversary Online Auction
Parish Groups & Ministries
All Groups and Ministries Directory
Devotional & Prayer Groups
Fellowship Groups
Scouting & Youth Organizations
Serve Your Community
Serve at Seton
Small Groups and Studies
Support Groups
Quick Links
Knights of Columbus
Seton Men's Club
Seton Womens Club
Love Truck Ministy
St. Vincient de Paul
Young Family Connect
Giving
Ways to Give
Give Now
Bishop's Annual Appeal
Diocesan Second Collections
Seton Loan Reduction 2030
Donate: Love Truck
Donate: St. Vincent de Paul Society
Financial Reports for the Fiscal Year Ending June 30, 2025
Devotional & Prayer Groups
Fellowship Groups
Women's Club
Seton Women's Club Holiday Bazaar
WC Photo Albums
CALENDAR - Fun at Monthly Meetings
Women's Club Members Only
VOLUNTEER OPPORTUNITIES
Meeting Updates
WC New Member Registration
Men's Club
Casino Festival
Men's Club Data Lake
MC Raffle
Men's Club Scholarships
Young Family Connect
Seton Seniors
Seton Marrieds
Contact Us
2024 Calendar
Gallery
Additional Information
Registration
Marrieds Members Only
SonRise Brotherhood
Family Life Ministries
Serve Your Community
Catholic Charities
Knights of Columbus
KofC Bingo
KofC 7850
KofC Golf
KofC Golf Reg
KofC Golf Sponsor
KofC Golf Fam Sponsor
KofC Golf Fam Reg
KofC Golf Sponsors
KofC Golf Winners
KC Golf Sponsors 2025
KC Golf Winners 2025
KofC Rosary
KofC Donation
KofC Tootsie Roll Donation
KofC Changing Lives Donation
KofC Donation
KofC Breakfast
Giving Tree
Giving Tree Volunteer Info
Love Truck Ministry
POWS
Prison Ministry
St. Vincent de Paul
Serve at Seton
Altar Guild
Altar Servers
Arts & Environment
Cathecists
Children's Liturgy of the Word
Extraordinary Ministers of Holy Communion
Lectors
Music Ministry
Ushers
Vacation Bible School
Visitation Ministries
Volunteer with Children & Youth Ministry
Small Groups and Studies
Living Your Stregthens
LYS Registration
LYS Marriage Workshop
Support Groups
Catholic Once & Again
Friends of the Bereaved
Seton Caregivers Support Group
Prayer Quilt Ministry
Shawl Ministry
Youth Organizations
Boy Scouts
Cub Scouts
Girl Scouts
|||
The Catholic Community
of St. Elizabeth Ann Seton
St. Elizabeth Ann Seton
Giving
Facebook
Search
Search
About Us
Our Campus
Our Clergy & Staff
Our Story
Calendar of Events
Become a Parishioner
Safe Environment
Nursery
Weekly Bulletins
Parish News
Contact Form
Worship
Mass Times, Confession, & Adoration
Livestream Masses
Funerals
Prayer Requests & Mass Intentions
Taizé Prayer
Sacraments
Becoming Catholic & OCIA
Baptism
First Holy Communion & Reconciliation
Confirmation
Holy Matrimony
Anointing of the Sick
Holy Orders
Sacramental Record Request
Ministries
Liturgical Ministry
Music Ministry
Pastoral Care
Visitation Ministries
Faith Formation
Adult Ministry
Children's Ministries
Youth Ministry
Young Adult Ministry
Get Involved
Parish Events
50th Anniversary Picnic
Msgr. Henry Petter’s 50th Ordination Anniversary Reception
Multicultural Celebration 2026
Seton Women's Club Holiday Bazaar
50th Anniversary Online Auction
Parish Groups & Ministries
All Groups and Ministries Directory
Devotional & Prayer Groups
Fellowship Groups
Scouting & Youth Organizations
Serve Your Community
Serve at Seton
Small Groups and Studies
Support Groups
Quick Links
Knights of Columbus
Seton Men's Club
Seton Womens Club
Love Truck Ministy
St. Vincient de Paul
Young Family Connect
Giving
Ways to Give
Give Now
Bishop's Annual Appeal
Diocesan Second Collections
Seton Loan Reduction 2030
Donate: Love Truck
Donate: St. Vincent de Paul Society
Financial Reports for the Fiscal Year Ending June 30, 2025
Devotional & Prayer Groups
Fellowship Groups
Women's Club
Men's Club
Young Family Connect
Seton Seniors
Seton Marrieds
SonRise Brotherhood
Family Life Ministries
Serve Your Community
Catholic Charities
Knights of Columbus
Giving Tree
Love Truck Ministry
POWS
Prison Ministry
St. Vincent de Paul
Serve at Seton
Altar Guild
Altar Servers
Arts & Environment
Cathecists
Children's Liturgy of the Word
Extraordinary Ministers of Holy Communion
Lectors
Music Ministry
Ushers
Vacation Bible School
Visitation Ministries
Volunteer with Children & Youth Ministry
Small Groups and Studies
Living Your Stregthens
Support Groups
Catholic Once & Again
Friends of the Bereaved
Seton Caregivers Support Group
Prayer Quilt Ministry
Shawl Ministry
Youth Organizations
Boy Scouts
Cub Scouts
Girl Scouts
Parish Hours & Buildings
Parish Hours
Sactuary
Open Daily 6:30 am - 6:30 pm
Chapel & Columbarium
Open Daily 6:30 am - 6:30 pm
The chapel is open until 7:00 pm on Wednesdays.
Parish Offices
Monday through Friday
9:00 am - 12:00 noon & 1:00 pm - 5:00 pm
Building Maps
Main Church and Parish Activity Center room map
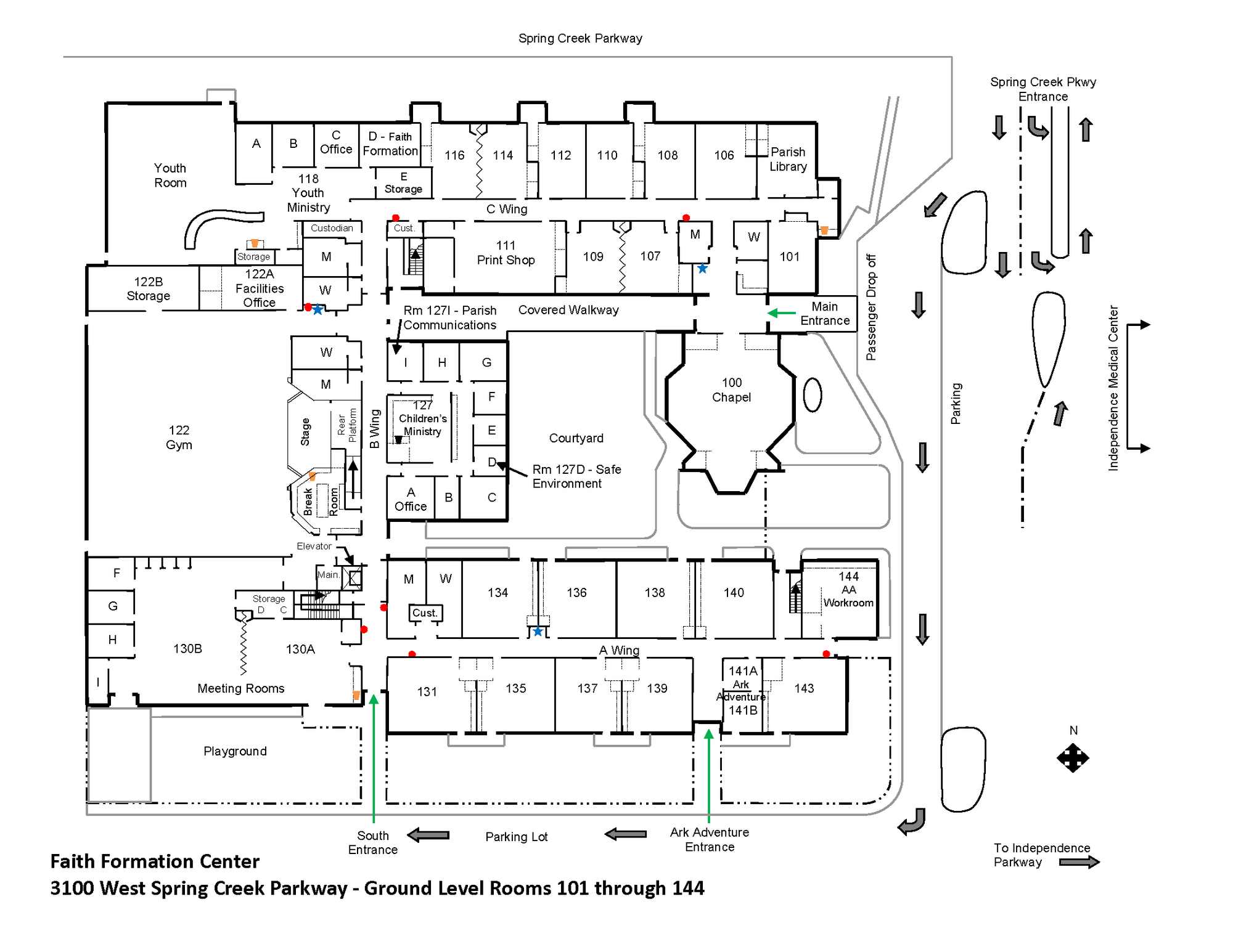
Seton Faith Formation Center 1st floor room map
Seton Faith Formation Center 2nd floor room map
General Map of Both Campuses
PARISH BUILDING LOCATIONS
Main Church & Chapel
2700 W. Spring Creek PKWY
Plano, Texas
Faith Formation Center
3100 W. Spring Creek PKWY
Plano, Texas
Parish Business Office
2701 Piedra Drive
Plano, TExas